
Atherton
Location
Atherton
Project Description
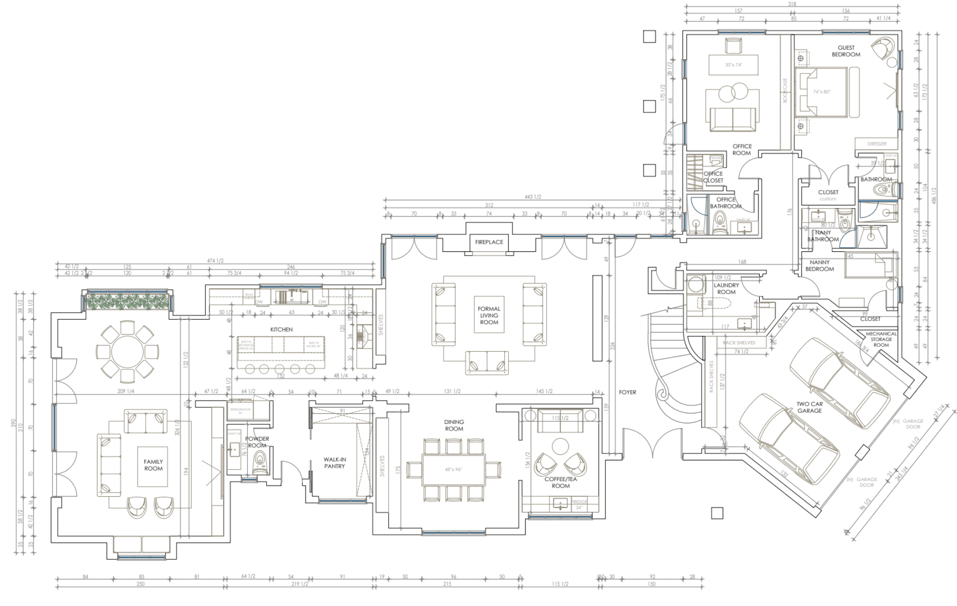
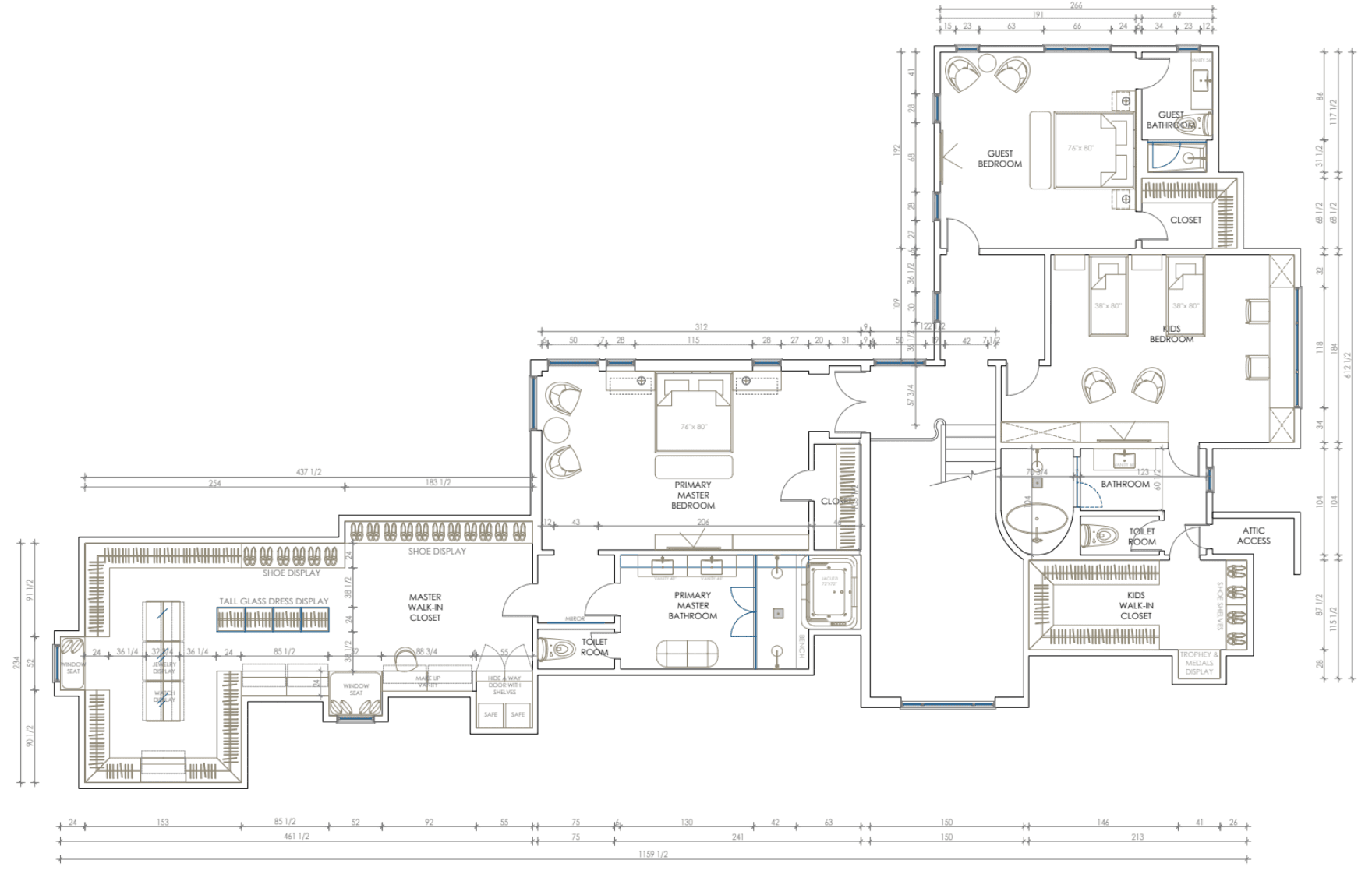
Atherton is a comprehensive interior & exterior renovation by Moses Hershko Development done in collaboration with MHD Group. This full-home remodel modernizes multiple living spaces throughout the residence, including updated living areas, kitchen, bathrooms, bedrooms and building almost 1000 SF primary closet , with a focus on refined aesthetics and improved flow. Exterior of the property has also been redone, including hardscaping, landscaping, pool remodel, new gates and building pergola with outdoor kitchen which is an entertainer’s dream. The project blends high-end finishes and thoughtful design to better suit the client’s lifestyle while enhancing both form and function in this classic Atherton home.

Floor Plans
3D Renderings
In The Press
Inside a $28M Dream Home Project in Atherton
In this episode, Moses Hershko presents a remarkable project in the prestigious area of Atherton, Silicon Valley. This full renovation is the result of his company’s comprehensive approach — taking a vision from the very first sketches and renderings through to flawless implementation.
Next Project
Project Dianne



