Skip
home
Services
Design / Build
Construction
Development
Projects
Contact
home
Services
Design / Build
Construction
Development
Projects
Contact
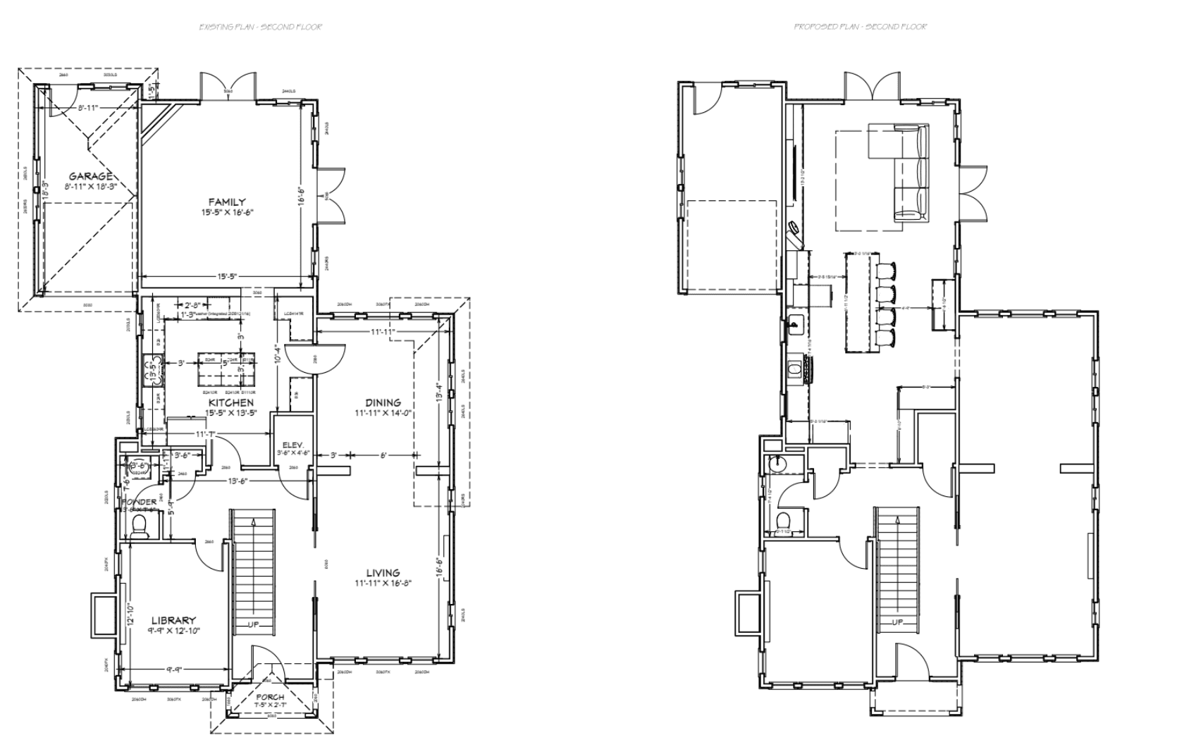
PALO ALTO - TASSO
S
C
R
O
L
L
D
O
W
N
Location
Floor Plans
3D Renderings