Moses Hershko Development Logo

0%

Email us
Instagram
Contact Form
Contact
San Mateo

Previous Project

San Mateo

SCROLL DOWN

Location

San Mateo

Year

2025

Interior

Exterior

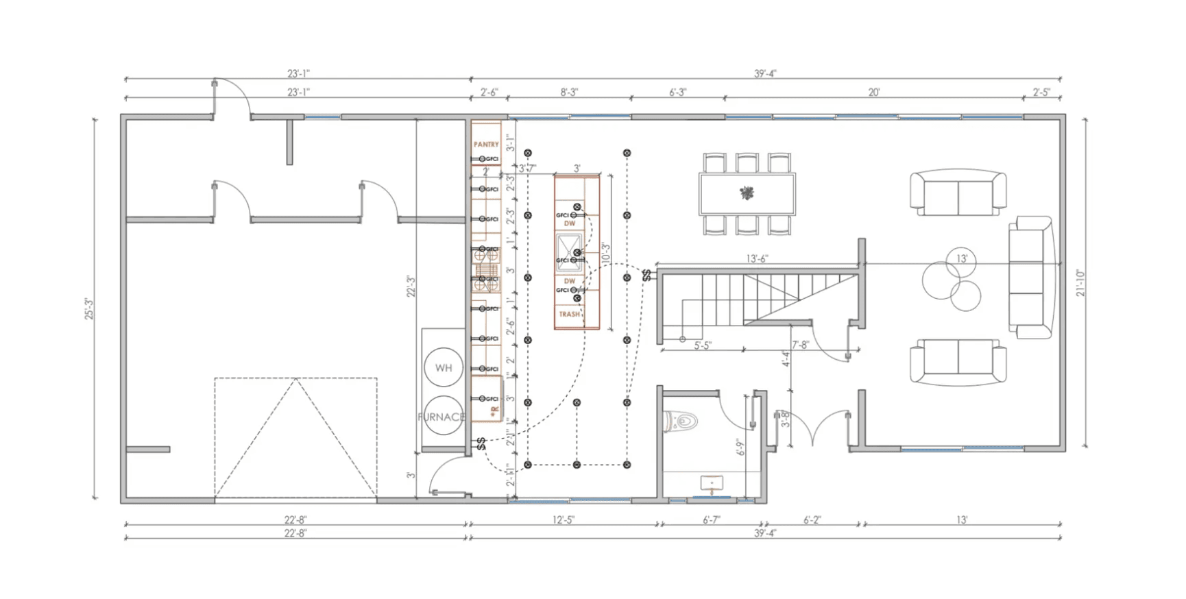
Floor Plans

3D Renderings

Next Project

SCROLL DOWN
Project Blewett